Räucherofen - Sparvariante -

Kalträuchern, Warmräuchern, Heißräuchern und Co.
Benutzeravatar
Iceman
Feuertycoon
Feuertycoon
Beiträge: 1553
Registriert: Di 9. Aug 2011, 19:38
Wohnort: Bad Düben
Kontaktdaten:

Re: Räucherofen - Sparvariante -

Beitrag von Iceman »

Klingt lecker :kochen:
Viele Grüße, Heiko
Benutzeravatar
ar1
Feuertycoon
Feuertycoon
Beiträge: 825
Registriert: Do 8. Nov 2012, 22:17

Re: Räucherofen - Sparvariante -

Beitrag von ar1 »

Hallo Lutz,

kannst du den Ofen bitte einmal in der Totalen einstellen?
Beim SBO habe ich noch Steine über und überlege, ob ich noch einen Räucherofen anfüge.

Leider habe ich keine Ahnung, wie der Ofen so aufgebaut ist.

Gruß
Ari
Gruß

Adrian

_________________________________________________________
Nimm das Leben nicht zu ernst, du kommst da eh nicht lebend raus!
BackFisch

Re: Räucherofen - Sparvariante -

Beitrag von BackFisch »

Hallo Adrian,

sorry, ich habe die Frage wohl verpeilt....
Hier noch zwei Bilder. Der Ofen steht unter dem Überdach meines Gartenhäuschens. Da ist sehr
wenig Platz für Fotos...
Der Rohbau ohne Abdeckung...
Der Rohbau ohne Abdeckung...
rohbau_2.jpg (41.46 KiB) 4179 mal betrachtet
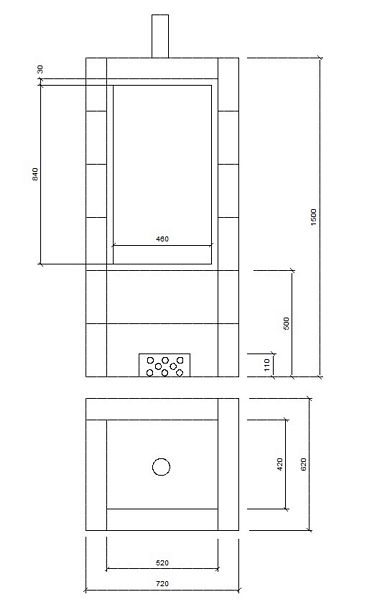
grobe Skizze...
grobe Skizze...
skizze.jpg (19.06 KiB) 4179 mal betrachtet
Mit den besten Grüßen aus der Altmark

Lutz
Benutzeravatar
ar1
Feuertycoon
Feuertycoon
Beiträge: 825
Registriert: Do 8. Nov 2012, 22:17

Re: Räucherofen - Sparvariante -

Beitrag von ar1 »

Hi Lutz,

danke für die Bilder!

Leider macht momentan das Wetter nen Strich durch die Rechnung.
Schließlich ist auch auf dem SBO noch nicht mal ein Dach drauf ;-(

Gruß
Adrian
Gruß

Adrian

_________________________________________________________
Nimm das Leben nicht zu ernst, du kommst da eh nicht lebend raus!
Benutzeravatar
Ottis Eicher
Feuertycoon
Feuertycoon
Beiträge: 1434
Registriert: Mo 18. Jul 2011, 12:28
Kontaktdaten:

Re: Räucherofen - Sparvariante -

Beitrag von Ottis Eicher »

Hallo Räuchergemeinde,

ich wollte kein neues Thema aufmachen hier würde
es glaube ich passen.

Wir hatten gestern Besuch und durch zufall stellte sich
heraus, der Herr hat nen R-Schrank am Bodensee erstanden
Soll 1,8 m Hoch sein und aus einem alten Haus kommen
Wäre eine Betonvariante und Türe mit Filzdichtung. Er will ihn
ins Haus stellen und ich habe Ihm geraten mit dem schwarzen
Mann zu sprechen. Sieht er kein Problem drin. Sein Bekannter
darf zu Hause nicht mehr so viel Räuchern und da wollte er
einen Schrank haben und sich so die Kunst des Räuchern
anlernen. Kurz und gut ich werde Ihm helfen das Ding aufzustellen
und mich an diversen Veruschen beteiligen. Man lernt ja nie
aus.

Werde euch auf dem laufenden halten.
Gruß aus dem Sauerland

Ottis Eicher
Antworten

Zurück zu „Räuchern“

Wer ist online?

Mitglieder in diesem Forum: 0 Mitglieder und 0 Gäste